磁選機 棒磁石 リフマグ マグハンマ 選別機 マグネット応用機器の設計・製造・開発メーカー NMI 日本マグネティックス株式会社

詳細仕様

高勾配磁選機 CS-X型 湿式

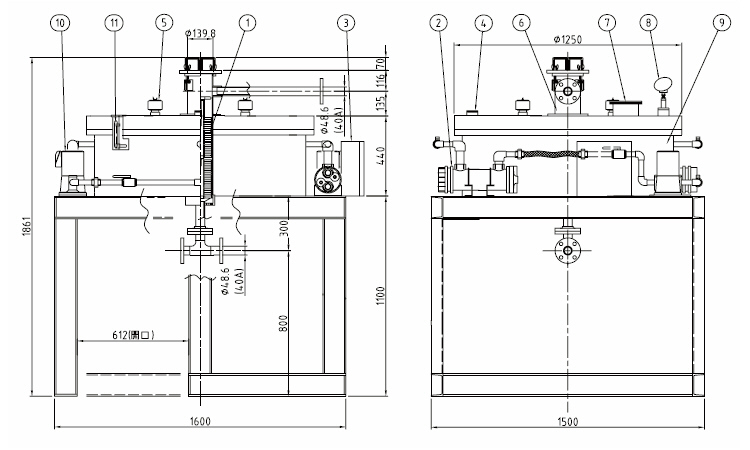
CS-140X型外形寸法図

高勾配磁選機 CS-X型 湿式
@フィルター A水冷オイルクーラー B中継端子箱 C注油口 Dエアブリーザ Eフィルターケース F端子箱 G測温抵抗体 Hコイルケース Iオイルポンプ J油面計 K架台

Copyright 2010 日本マグネティックス株式会社 All Rights Reserved.